商用日皮视频APP苹果下载工程专家谈商用日皮视频APP苹果下载设计应该考虑的因素
发布人: 日皮视频软件下载日皮视频APP苹果下载设备厂 发布时间:2019.01.10
日皮视频APP苹果下载是一个饭店、餐厅、酒店、饭店的核心,其直接影响着这些餐饮机构的生产能力和品质。因此,商用日皮视频APP苹果下载设计的设计非常的重要,如果日皮视频APP苹果下载设计的科学合理,那么,就会对日皮视频APP苹果下载的菜品和效率以及顾客的就餐时间、效率都会产生非常深远的影响。但是,商用日皮视频APP苹果下载的设计却是 一个非常复杂的问题,需要有专业的经验丰富的设计人员才能解决这个问题。作为商用日皮视频APP苹果下载工程专家,日皮视频软件下载就来谈谈商用日皮视频APP苹果下载设计需要注意哪些重要因素吧!
商用日皮视频APP苹果下载设计时必须尊重日皮视频APP苹果下载生产的客观规律

设计时应全面了解实际情况,充分尊重日皮视频APP苹果下载生产的客观规律,自觉遵守设计的原则,保证日皮视频APP苹果下载生产流程的畅通,避免日皮视频APP苹果下载内人员的交叉与碰撞。要考虑各工种人员要相对集中。避免工作人员大幅度走动,避免生产工序颠倒,货物回流现象,防止出菜人员与日皮视频APP苹果下载工作人员相互碰撞。否则,不合理的设计,不仅增加日皮视频APP苹果下载投资,而且将在日皮视频APP苹果下载生产中暴露出各种不足,增加人工及机械的运营成本,给酒店的管理带来诸多不便。
实用与方便日皮视频APP苹果下载的设计必须符合人体工程学的原理,方便使用,最大限度地减轻操作者的劳动强度,以提高工作效率,降低运营成本。
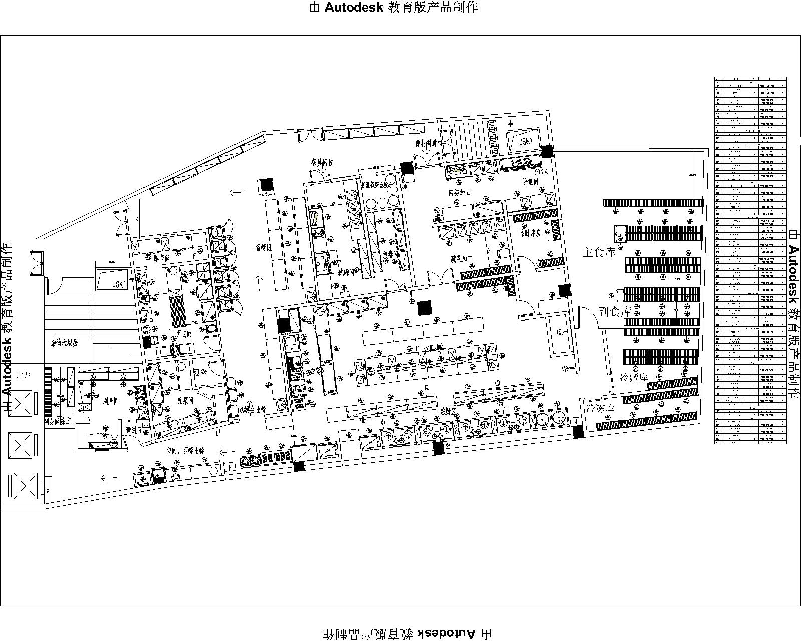
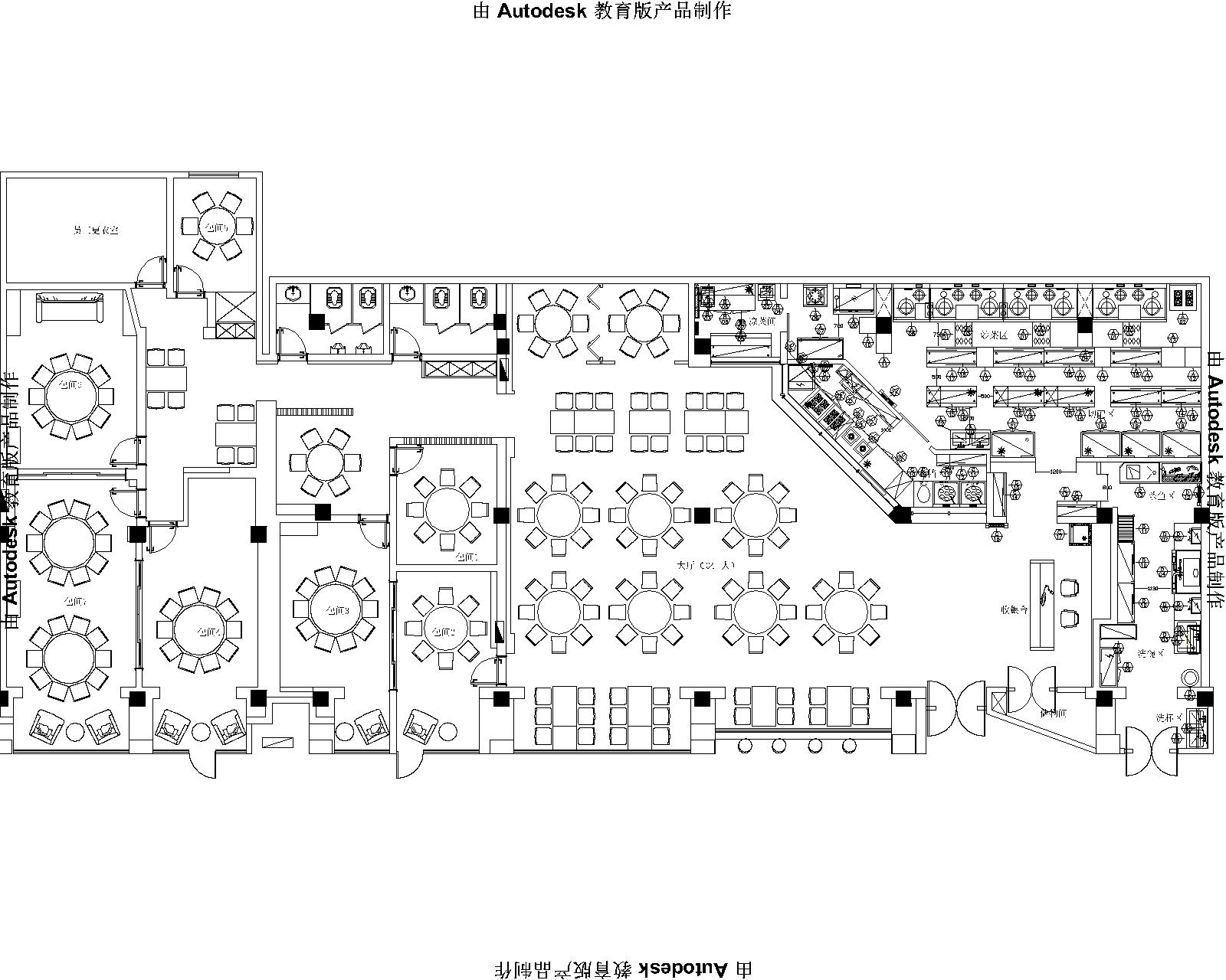
商用日皮视频APP苹果下载设计时必须对空间进行合理的划分
合理划分各功能区域,各区域间即独立又能互相配合,多选用节能环保的优质设备,要有利于其使用、清洁、维修、安全及节能,布局时要考虑到采光、照明和通风,最大限度利用自然条件,节约运营成本。
日皮视频APP苹果下载的种类及日皮视频APP苹果下载的位置不同,日皮视频APP苹果下载的设计布局自然也不同。正如有人说过,世界上除了连锁店或联锁饭店的日皮视频APP苹果下载设计布局大致相同之外,不可能再找到两家日皮视频APP苹果下载在设计布局上一致的了。不同类型的日皮视频APP苹果下载在设计方面均有不同的要求。因此,根据日皮视频APP苹果下载的种类及日皮视频APP苹果下载的位置,设计团队致力于把日皮视频APP苹果下载设计得更加合理化。
另外商用日皮视频APP苹果下载设计还应该考虑到一下几个具体因素:
1商用日皮视频APP苹果下载的通风设计
不管日皮视频APP苹果下载选配先进的运水烟罩,甚至是直接采用简捷的排风扇,尤其是配菜、烹调区形成负压。所谓负压,即排出去的空气量要大于补充进入日皮视频APP苹果下载的新风量。这样日皮视频APP苹果下载才能保持空气清新。但在抽排日皮视频APP苹果下载主要油烟的同时,也不可忽视烤箱、焗炉、蒸箱、蒸汽锅以及蒸汽消毒柜、洗碗机等产生的浊气、废气,要保证所有烟气都不在日皮视频APP苹果下载区域弥漫和滞留。因此在烤箱、焗炉、蒸箱、蒸汽锅以及蒸汽消毒柜、洗碗机等产生油烟和蒸气设备的上方,必须配备强有力的抽排烟设施,力求做到烹调日皮视频APP苹果下载每小时换气50-60次,一般随时保证日皮视频APP苹果下载空气清新。
2商用日皮视频APP苹果下载的明厨设计原则
日皮视频APP苹果下载的明厨、明档。餐馆设计明厨、明档,是餐饮业发展到一定时期的产物。设计明厨、明档,至少要注意不应因此设计而增加餐厅的油烟、噪声和有碍观瞻场景。有些只宜将生产的最后阶段作展示性的明厨设计,实在没有必要和盘托出。
3商用日皮视频APP苹果下载的地面原则
日皮视频APP苹果下载的地面设计和选材,切不可盲从,必须审慎定夺。在没有选择到新颖实用的防滑地砖前,使用红钢砖仍不失为有效之举。因为日皮视频APP苹果下载会产生很多废水,因此,在设计日皮视频APP苹果下载地面材料时日皮视频APP苹果下载的安全性才是最重要的。
4商用日皮视频APP苹果下载的用水和明沟设计原则
有许多日皮视频APP苹果下载在设计水槽(水池)时,由于配备的太少、太小,使得厨师要跑很远才能找见水池,于是忙起来干脆就很难顾及清洗,日皮视频APP苹果下载的卫生很难令人信服务。日皮视频APP苹果下载的明沟,是日皮视频APP苹果下载污水排放的重要通道。可有些日皮视频APP苹果下载明沟太浅,或太毛糙,或无高低落差,或无有机连接,使得日皮视频APP苹果下载或水地相连,或臭气熏人,日皮视频APP苹果下载很难做到干爽、清净。另外,日皮视频APP苹果下载也必须设计一些暗沟,以防止废水内的气味散出。因此,在进行日皮视频APP苹果下载设计时要充分考虑原料化冻、冲洗,厨师取用清水和清洁用水的各种需要,尽可能在合适位置使用的单槽或双槽水池,切实保证食品生产环境的整洁卫生。
5商用日皮视频APP苹果下载的灯光设计原则
餐厅的灯光重文化,日皮视频APP苹果下载的灯光重实用。这里的实用,主要指临炉炒菜要有足够的灯光以把握菜肴色泽;案板切配要有明亮的灯光,以有效防止刀伤和追求精细的刀工;出菜打荷的上方要有充足的灯光,切实减少杂草混入并流入餐厅等等。日皮视频APP苹果下载灯光不一定要像餐厅一样豪华典雅、布局整齐,但其作用绝不可忽视。
辅助设计是强化完善餐饮功能的必要补充。辅助设计,主要指的是在餐饮功能的划分上,既不算直接服务于客人用餐、消费的餐厅、也不属于菜点生产制作的日皮视频APP苹果下载。但少了这些设计,餐厅可能会显得粗俗不雅,甚至噪杂零乱;日皮视频APP苹果下载生产和出品也会变得断断续续,甚至残缺不全。这些辅助设计主要有备餐间和洗碗间等。
6 商用日皮视频APP苹果下载燃料库设计原则
有些商用日皮视频APP苹果下载使用的燃料往往是液化气和柴油。这个时候就需要专门设计一个燃料库,因此在设计燃料库一定要把燃料都集中到一个地方摆放,并且燃料库一定要设计在一个离开明火比较远的、比较隐蔽的地方。这样才能保证日皮视频APP苹果下载燃料的安全,以免引起火灾。在燃料库的周围至少应该保证在3米之内不能看见明火。
以上几点就是日皮视频软件下载在多年的商用日皮视频APP苹果下载设计中总结出来的经验,挂一漏万之处是难免的希望对大家能够有所帮助!
本文内容由四川日皮视频软件下载日皮视频APP苹果下载设备公司提供,部分图片和文字或来自网络,如涉及知识产权请于成都日皮视频APP苹果下载设备公司日皮视频软件下载联系。如需转载本文,请与有多年商用日皮视频APP苹果下载工程经验的老牌成都日皮视频APP苹果下载设备厂家日皮视频软件下载网站管理员联系。







