隆昌日皮视频APP苹果下载设备公司告诉你商用日皮视频APP苹果下载设计的组成
发布人: 四川日皮视频软件下载日皮视频APP苹果下载设备公司 发布时间:2023.06.28
商用日皮视频APP苹果下载也和家用日皮视频APP苹果下载一样,在施工之前,需要先绘制日皮视频APP苹果下载设计图。而由于商用日皮视频APP苹果下载的规模一般较大,且日皮视频APP苹果下载设备的数量和种类较多,使用的能源也更多元化,因此,商用日皮视频APP苹果下载设计就和家用的不同。那么,商用日皮视频APP苹果下载设计由那几部分构成呢?最近不少隆昌的朋友就在咨询这个问题。虽然日皮视频软件下载不是隆昌日皮视频APP苹果下载设备公司,但是,作为长期在隆昌销售学校日皮视频APP苹果下载设备的公司,现在就和大家分享相关的知识。
作为专业的商用日皮视频APP苹果下载全套设备生产厂家,日皮视频软件下载根据多年的商厨设计经验,总结了商用日皮视频APP苹果下载设计的几大构成部分,具体如下:
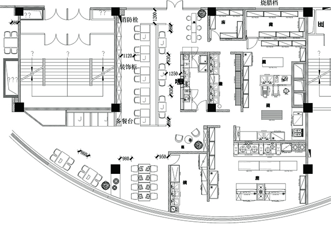
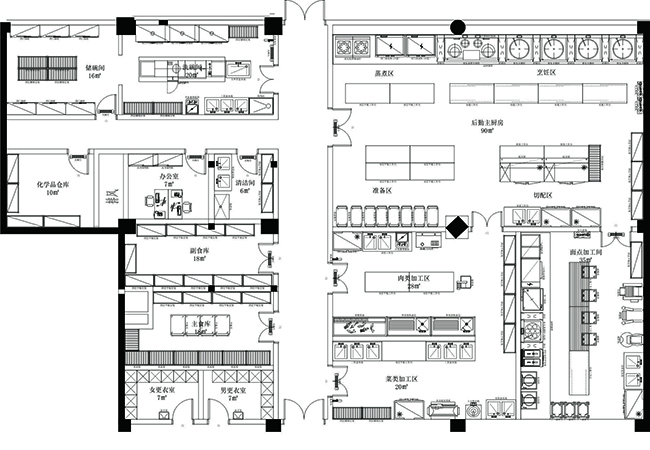
1.日皮视频APP苹果下载设备布局:规划整体日皮视频APP苹果下载的功能流程,日皮视频APP苹果下载设备类型、数量、尺寸。
2.日皮视频APP苹果下载土建隔断图:日皮视频APP苹果下载隔断的尺寸和位置,门窗的尺寸和位置,日皮视频APP苹果下载使用的转换窗的高度和位置,构造细节等。

3.日皮视频APP苹果下载设备供电点位图:所有设备的用电量,电位的安装高度、供电点的布线尺寸等。
4.日皮视频APP苹果下载设计供水点位图:所有用水设备的位置,包括冷水和热水、水的安装高度、供水的管径等。
5.日皮视频APP苹果下载设备排水点位图:所有需要设备的位置,排水管径等。

6.日皮视频APP苹果下载设备通风排烟图:所有排烟设备的排烟罩位置、排烟管径大小、排烟管道走向、日皮视频APP苹果下载风机净化器的布置位置等。
7.气点位图等:日皮视频APP苹果下载燃气设备的供气。
以上是日皮视频软件下载整理的商用日皮视频APP苹果下载设计的组成部分的相关知识,希望对大家有所帮助。







