成都不锈钢厨具厂家告诉你大型学校食堂日皮视频APP苹果下载工作间设计要点
发布人: 四川日皮视频软件下载日皮视频APP苹果下载设备公司 发布时间:2021.09.02
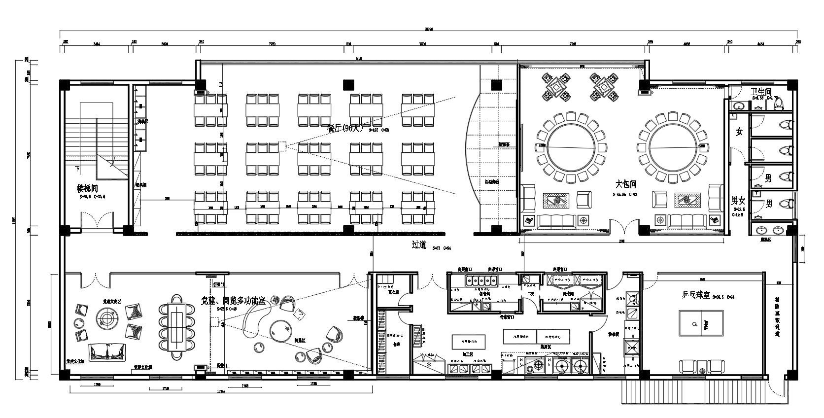
大型学校食堂日皮视频APP苹果下载加工的食物很多,加工制作的工艺也非常之多,为了能够完成如何复杂的食材加工,许多的大型学校食堂日皮视频APP苹果下载都分为几个功能区域。而日皮视频软件下载也都知道每个功能区都有不同的设备,都有不同的工艺要求,因此,在设计日皮视频APP苹果下载功能间是就必须了解日皮视频APP苹果下载的实际结构和功能,这样才能够满足大型食堂日皮视频APP苹果下载的要求。那么,应该如何设计食堂功能间呢?作为专业的成都不锈钢厨具厂家,日皮视频软件下载有多年的商用日皮视频APP苹果下载设计经验,现在就和大家讨论相关的知识。
作为专业的成都不锈钢厨具厂家,日皮视频软件下载认为,在设计日皮视频APP苹果下载功能间时需要注意以下这些情况:
1、明确出餐特点
食堂、集中配餐、西点、零点饭店的主食加工间的区别相当大。主食加工间的出餐特点决定了所需设备的种类、型号和数量。主食加工间的设备种类、型号多,功能专一,不能互换使用。因此,主食加工间设计要明确经营特点、主营餐品种类和数量、需要的设备、加工工序与工艺特点,才能有针对性地设计,优化设计方案。
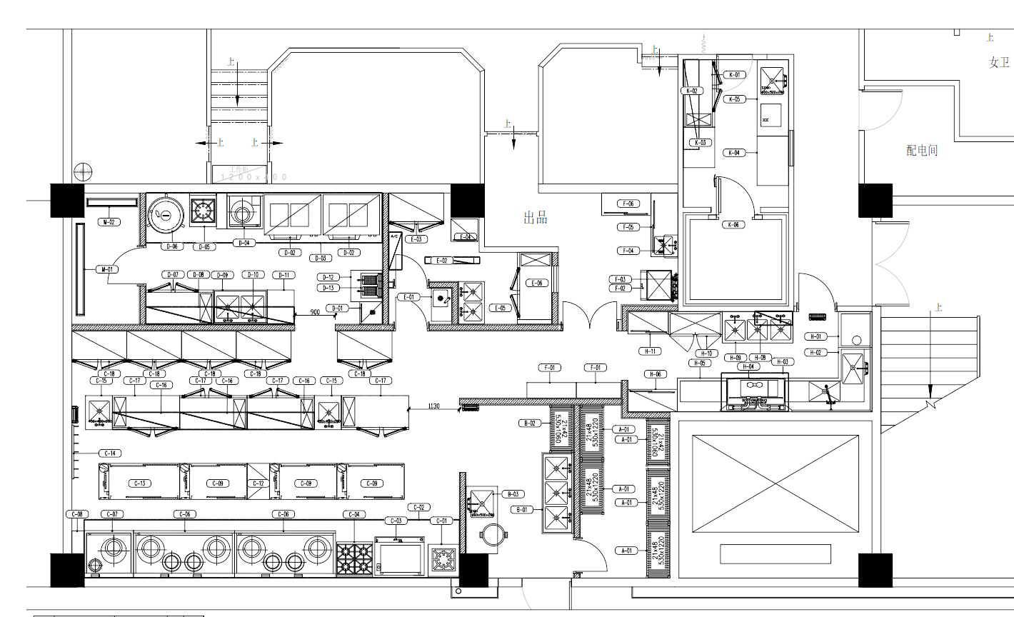
2、生制区与熟制区分开
一般在一个主食加工区域内设计两大区,即生制区与熟制区,按加工流程布设,互不掺混。生制区的和面机、压面机、面案、醒柜,按流水工序安排在一起。熟制设备安排在一起便于排烟、排气。较大的饭店设有主食特色风味食品,如西点等,应该设单独加工间,可以满足生制区低温干爽等环境控制指标,有利于馅料保鲜。
3、主要日皮视频APP苹果下载设备和配套设备要满足出餐需要
设备的种类、型号和数量要满足出餐需要,主要设备要根据实际需要配置齐全,保鲜工作台、水池、冷藏柜、面粉车、货架、碗柜等辅助配套设备也应配置齐全。尽量做到不用离位就可以完成存取原料、洗洗涮涮、取放餐具等动作。特别是食堂、配餐中心的主食加工间,出餐量比较大,要有足够的装载生制品与熟制品的送餐车架,并留出运送通道。例如,生制品中的馒斗子饺子,点心要装盘待用,需要车式馒头架、烤饼架等。
4、设备布局流程顺畅
主食运送量较大,特别是食堂和快餐店,都要运送大量的主食和汤粥,有时需要用推车运送,所以要留有较宽的通道,设备布局与通道衔接要十分简捷顺畅。较大的主食加工间要设生入与熟出的专用进出口,或用出餐口分开运行路线,确保加工传餐顺畅方便。
5、足够的能源保证
主食加工间设备大多数能耗较大,开火时间较长,用电设备如蒸柜、烤箱,功率都是十几千瓦或更大,所以需要油气、蒸汽、电力有足够的保证能力。
6、环保措施
主食加工间的熟制设备会产生大量的蒸汽、热气、油烟,特别是蒸汽,如果不能及时排出在冬季就会在日皮视频APP苹果下载内形成水雾,影响视线,遇物体还会凝结为水滴,使所有用品和墙面受潮科学合理地排出蒸汽、油烟,补充新风有利于改善工作环境和保持原料的新鲜。
7、存储空间
主食加工所用的原料,如食堂米面,用量都比较大,应根据实际需要设置运送、存储空间装盘待用的馒头、包子、饺子、点心,馅料与成品冷冻冷藏的制冷设备,原料、佐料、调料餐具、用具的柜架,都要有合适的存放空间。
8、及时可靠的信息传达
由于主食加工制作时间比较长,除米饭、馒头、包子、点心可以提前熟制备用以外,还有些根据客人需要必须随时加工、及时上桌的食品,如果信息传达不及时就会误事。
以上这些就是日皮视频软件下载整理的关于商用日皮视频APP苹果下载功能间设计的相关知识,希望对大家能够有所帮助。







